Logo BA Construcciones BA Construcciones

095 980 350
URUGUAY
  • inicio
  • casas llave en mano
  • obras realizadas
    • residencial
    • comercial
    • rural
  • preguntas frecuentes
  • contacto
Pedir presupuesto

MODELO 207 A1

MODELO 207 A1

MODELO 207 A1

MODELO 207 A1

MODELO 207 A1

MODELO 207 A1

MODELO 207 A1

MODELO 207 A1

MODELO 207 A1

MODELO 207 A1

MODELO 207 A1

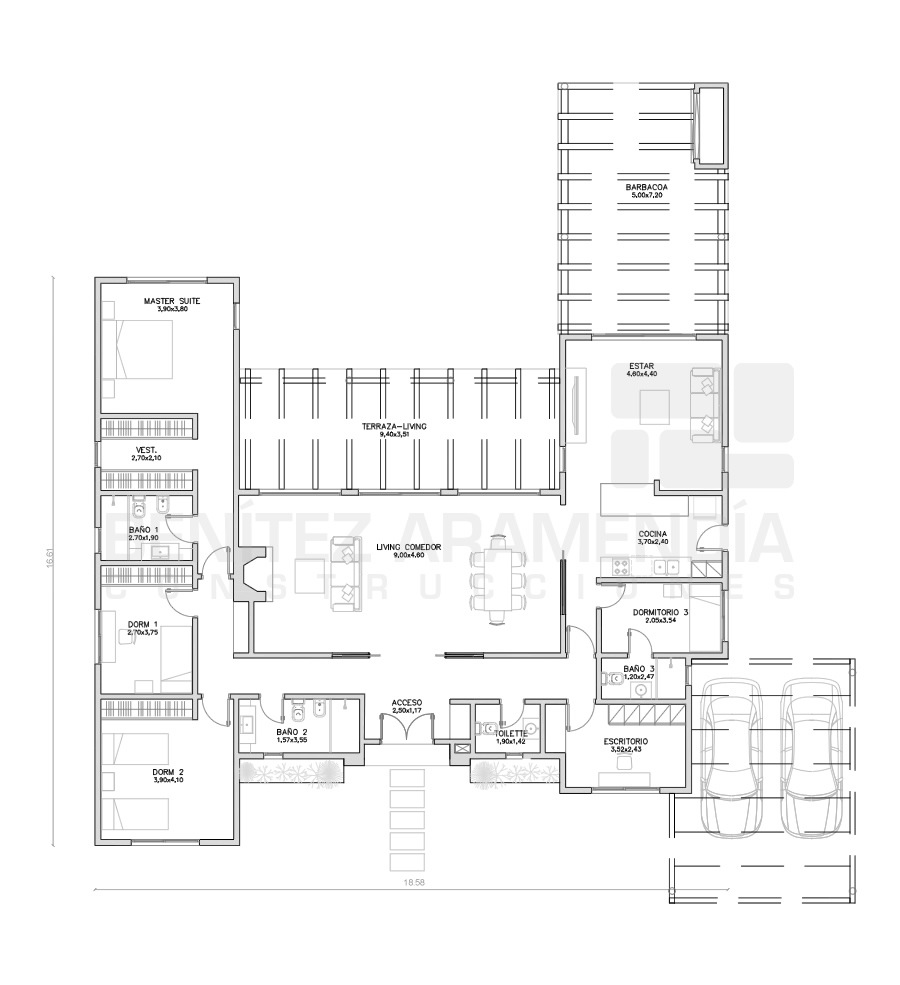
La casa se desarrolla toda en una planta, cuenta con doble circulación y un importante living comedor con gran altura de techos y ventanales al jardín.  En la composición de su fachada se aprecia una marcada simetría con el acceso principal al centro y un  rico juego de volúmenes. Al ingresar nos recibe un hall central definido que se vincula con un toilette de visitas, un escritorio y el gran living comedor.  La cocina se ubica junto a el estar diario y la misma puede ser definida o integrada con una barra o isla. Adyacente a la cocina se encuentra un dormitorio con baño en suite. La zona privada se compone de tres cómodos dormitorios y dos baños. El dormitorio principal cuenta con baño en suite y vestidor. En los espacios exteriores están previstos un parrillero con pérgola cubierta, una terraza con pérgola cubierta vinculada al living comedor, un área de servicios con tendedero, depósito y una cochera con pérgola cubierta para dos autos. 

PLANTA MODELO 207 A1

CARACTERÍSTICAS
  • - 4 Dormitorios
  • - 4 Baños
  • - Living
  • - Comedor
  • - Cocina
  • - Estar diario
  • - Escritorio
  • - Lavadero
  • - Barbacoa cubierta (Premium PLUS)
  • - Cochera cubierta x 2 (Premium PLUS)
  • - Tender (Premium PLUS)
  • - Depósito (Premium PLUS)
  • - Pérgola Living (Premium PLUS)

 

MODELO MODELO 207 A1
SUP. CONSTRUIDA 313 m2
DISEÑO Estudio Etchegaray
PROYECTO EJECUTIVO BAC
PLAZO OBRA 8 meses
SUPERFICIE
Casa 207 m2
Barbacoa 72 m2
Cochera 34 m2
TOTAL 313 m2
PRECIO
Versión Premium USD Consultar
Versión Premium PLUS USD Consultar

Nota: Valores de referencia para Montevideo y zona de la Tahona (Canelones). No incluyen terreno

Descargar ficha completa
volver al catálogo
Pedir presupuesto
Logo >BA Construcciones

Horario de atención: Lunes a Viernes de 08 a 13 hs. y 14 a 18 hs.
Ventas: 095980350 | Administración: 2712 0624
info@baconstrucciones.com
Solano García 2646 of. 301

SOLICITÁ ENTREVISTA ANTES DE VISITARNOS

Ver nuestras publicaciones en Instagram:

2026 Aviso Legal: todos los derechos reservados