Logo BA Construcciones BA Construcciones

095 980 350
URUGUAY
  • inicio
  • casas llave en mano
  • obras realizadas
    • residencial
    • comercial
    • rural
  • preguntas frecuentes
  • contacto
Pedir presupuesto

MODELO 134 A1

MODELO 134 A1

MODELO 134 A1

MODELO 134 A1

MODELO 134 A1

MODELO 134 A1

MODELO 134 A1

MODELO 134 A1

MODELO 134 A1

MODELO 134 A1

MODELO 134 A1

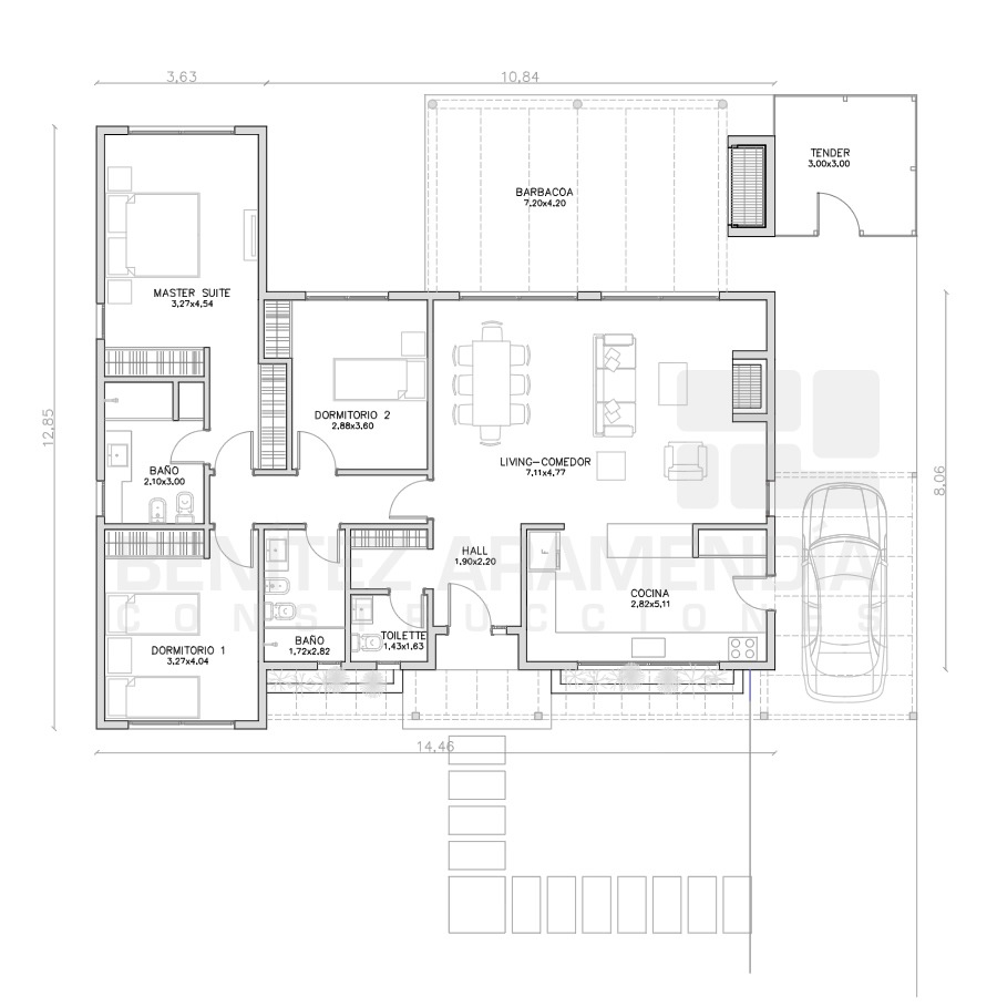
La casa se desarrolla toda en una planta, al ingresar nos recibe un hall de acceso definido que se vincula con un toilette de visitas.  La cocina ubicada al frente permite que todo el espacio del living comedor se comunique e integre con la barbacoa que da al jardín, además cuenta con acceso directo desde la cochera. La zona privada se compone de tres cómodos dormitorios y dos baños. El dormitorio principal cuenta con baño en suite y profusión de placares. Los espacios exteriores se componen de una barbacoa con parrillero (construcción tradicional) con pérgola cubierta, un área de servicios con tendedero, depósito y una cochera con pérgola cubierta. 

PLANTA MODELO 134 A1

CARACTERÍSTICAS
  • - 3 Dormitorios
  • - 3 Baños
  • - Living
  • - Comedor
  • - Cocina
  • - Barbacoa cubierta (Premium PLUS)
  • - Cochera cubierta (Premium PLUS)
  • - Tender (Premium PLUS)
  • - Deposito (Premium PLUS)
MODELO MODELO 134 A1
SUP. CONSTRUIDA 184 m2
DISEÑO Estudio BA
PROYECTO EJECUTIVO BAC
PLAZO OBRA 6 meses
SUPERFICIE
Casa 134 m2
Barbacoa 30 m2
Cochera 20 m2
TOTAL 184 m2
PRECIO
Versión Premium USD 274.100
Versión Premium PLUS USD 338.900

Nota: Valores de referencia para Montevideo y zona de la Tahona (Canelones). No incluyen terreno

Descargar ficha completa
volver al catálogo
Pedir presupuesto
Logo >BA Construcciones

Horario de atención: Lunes a Viernes de 08 a 13 hs. y 14 a 18 hs.
Ventas: 095980350 | Administración: 2712 0624
info@baconstrucciones.com
Solano García 2646 of. 301

SOLICITÁ ENTREVISTA ANTES DE VISITARNOS

Ver nuestras publicaciones en Instagram:

2026 Aviso Legal: todos los derechos reservados