Logo BA Construcciones BA Construcciones

095 980 350
URUGUAY
  • inicio
  • casas llave en mano
  • obras realizadas
    • residencial
    • comercial
    • rural
  • preguntas frecuentes
  • contacto
Pedir presupuesto

MODELO 234 A1

MODELO 234 A1

MODELO 234 A1

MODELO 234 A1

MODELO 234 A1

MODELO 234 A1

MODELO 234 A1

MODELO 234 A1

MODELO 234 A1

MODELO 234 A1

MODELO 234 A1

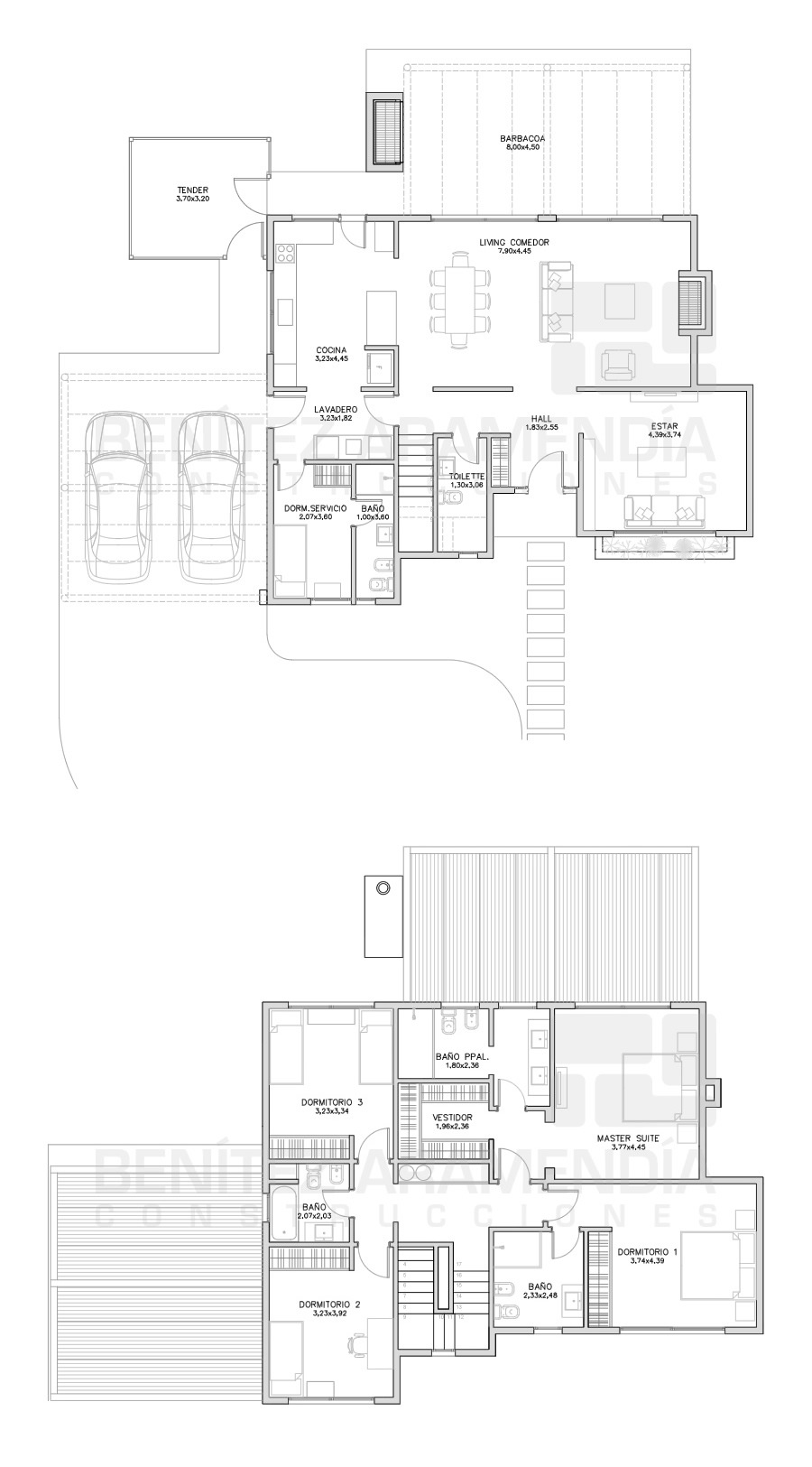
La casa se desarrolla en dos niveles. Al ingresar por la planta baja nos recibe un hall de acceso vinculado a un toilette de visitas, un estar diario o escritorio y el gran living comedor con ventanales al jardín posterior.  La cocina se ubica junto al living comedor y puede ser definida o integrada con una barra o isla. Adyacente a la cocina se encuentra una zona de lavadero y un dormitorio con baño en suite. En la planta alta tenemos cuatro dormitorios, el dormitorio principal cuenta con baño en suite y vestidor definido, luego hay un segundo dormitorio también con baño en suite y por ultimo dos dormitorios que comparten un baño. El hall de distribución cuenta con un amplio placard para la ropa blanca. En los espacios exteriores están previstos un parrillero con pérgola cubierta vinculada al living comedor, un área de servicios con tendedero, depósito y una cochera con pérgola cubierta para dos autos. 

PLANTA MODELO 234 A1

CARACTERÍSTICAS
  • - 5 Dormitorios
  • - 5 Baños
  • - Living
  • - Comedor
  • - Cocina
  • - Estar diario
  • - Lavadero
  • - Barbacoa cubierta (Premium PLUS)
  • - Cochera cubierta x 2 (Premium PLUS)
  • - Tender (Premium PLUS)
  • - Depósito (Premium PLUS)
MODELO MODELO 234 A1
SUP. CONSTRUIDA 308 m2
DISEÑO Estudio Hughes & Presno
PROYECTO EJECUTIVO BAC
PLAZO OBRA 10 meses
SUPERFICIE
Casa 234 m2
Barbacoa 40 m2
Cochera 34 m2
TOTAL 308 m2
PRECIO
Versión Premium USD Consultar
Versión Premium PLUS USD Consultar

Nota: Valores de referencia para Montevideo y zona de la Tahona (Canelones). No incluyen terreno

Descargar ficha completa
volver al catálogo
Pedir presupuesto
Logo >BA Construcciones

Horario de atención: Lunes a Viernes de 08 a 13 hs. y 14 a 18 hs.
Ventas: 095980350 | Administración: 2712 0624
info@baconstrucciones.com
Solano García 2646 of. 301

SOLICITÁ ENTREVISTA ANTES DE VISITARNOS

Ver nuestras publicaciones en Instagram:

2026 Aviso Legal: todos los derechos reservados